


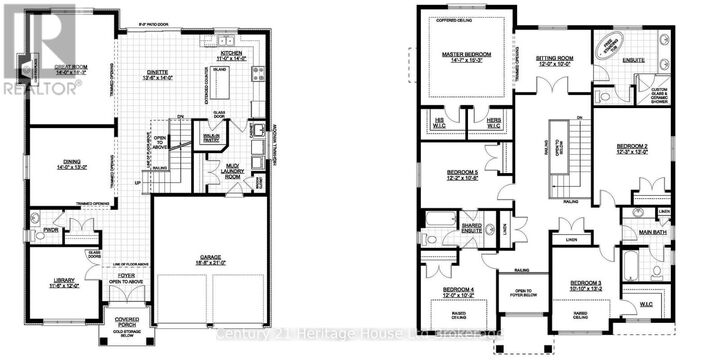
12 East Darrow Drive East Tillsonburg, ON N4G 1C4
X12763492
Single-Family Home
Oxford County
Listed By
CREA
Last checked Feb 18 2026 at 5:11 AM GMT+0000
- Full Bathrooms: 3
- Partial Bathroom: 1
- Foundation: Poured Concrete
- Forced Air
- Natural Gas
- Central Air Conditioning
- Air Exchanger
- Full
- Stucco
- Brick
- Sewer: Sanitary Sewer
- Total: 4
- Attached Garage
- Garage
- 2

Description